Продається квартира Одеська, Одеса, Приморський (№ 213-206-650)

Ціна: 120 000 $
Характеристики
| Ціна: | 120 000 $ |
|---|---|
| № об'єкта: | 213-206-650 |
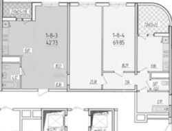
| Кімнат: | 3 |
| Поверх: | 8 / 24 |
| Площа: | 113 / - / 30 м2 |
Адреса: Одеська, Одеса, Приморський
Продам свою квартиру в 66 Жемчужине на Краснова.Дом уже сдан, а вы всё думаете? Продаю свою большую трёхкомнатную квартиру, перепланированную на этапе строительства из двухкомнатной и однокомнатной квартиры, в шикарном ЖК «66 Жемчужина» на Краснова. Цена — 120?000? 8 этаж из 24 — высоко, но не так, чтоб за лифтом очередь стоять. 112,6 кв.м счастья — хватит и вам, и детям, и коту с собакой! Кухня-гостиная — 30 кв.м! Три отдельные комнаты — чтобы никто никому на голову не лез. А балконов два — один открытый, другой- терраса! Вид на ипподром. Состояние — от строителей, так что делайте ремонт под себя, под тёщу или под всех сразу. ЖК бизнес-класса от «Кадор» — не построят абы как, строят надёжно, чтоб потом гордиться! До центра — рукой подать, до моря — ещё проще. Короче, кто успел — того и тапки! Звоните сегодня, потому что завтра кто-то другой позвонит — и будете кусать локти, глядя на чужой балкон! Ну что, звоним? Жду! Пока квартира ещё моя.Вид обєкта: Новобудова;Тип будинку: Житловий фонд від 2021 р.;Назва ЖК: 66 Жемчужина;Тип угоди: Переуступка;Тип стін: Монолітний;Клас житла: Бізнес;Планування: Роздільна;Cанвузол: 2 і більше;Опалення: Власна котельня;Ремонт: Після будівельників;Меблювання: Ні;






